Hi Everyone, before we get into a change of renovation plans. Yuck, but I’ve been sick the last couple of days. It’s mostly just a fever and aches. Not severe enough to call my doctor, but bad enough to keep me awake most of the night. My covid test was negative. I thought it was from the heat on Friday since I was out for three hours the evening before.
Anyway, I’m feeling better right now at 7:30 on Saturday. But, this is a “light post.” For me, that is. But, why the glum looks? Oh, I know, I’m feeling better, and that is making you sulk. (bad joke) What is the matter?
Oh, Laurel, don’t tell us that you’re not going to do the renovation after all.
Well, believe me, the thought has crossed my mind. Everything is very slow. However, I am still planning on going through with it. But, it’s not going to begin until early next spring. My goal will be to have it all finished by 2023.
However, there’s been an important lesson here as I’ve had so much time to consider my options. So, what has changed are the actual designs.
The kitchen is unrecognizable. However, here’s what’s interesting. The plan I’m going with is very close to one of my original plans. Some of you hated it. However, I’ve made some necessary changes.

Above is one of the most recent kitchen mockups from last March. However, I began doing this mockup in October.
While I still like this plan, a couple of things happened that caused me to change my renovation plans.
I began working with a kitchen designer who I can’t mention now but definitely will. I asked her what she thought of the under-counter refrigeration; I don’t recall if she answered. However, she sent me a rendering. That was close to this drawing I did in 2020!

And while the details weren’t there yet, the basic renovation plan I could see was better in numerous ways.
The most significant way is the refrigerator. The old renovation plans called for ONLY under-counter refrigeration.
Fortunately, I came to my senses. I don’t think it would be good for resale. And maybe not even good for me.
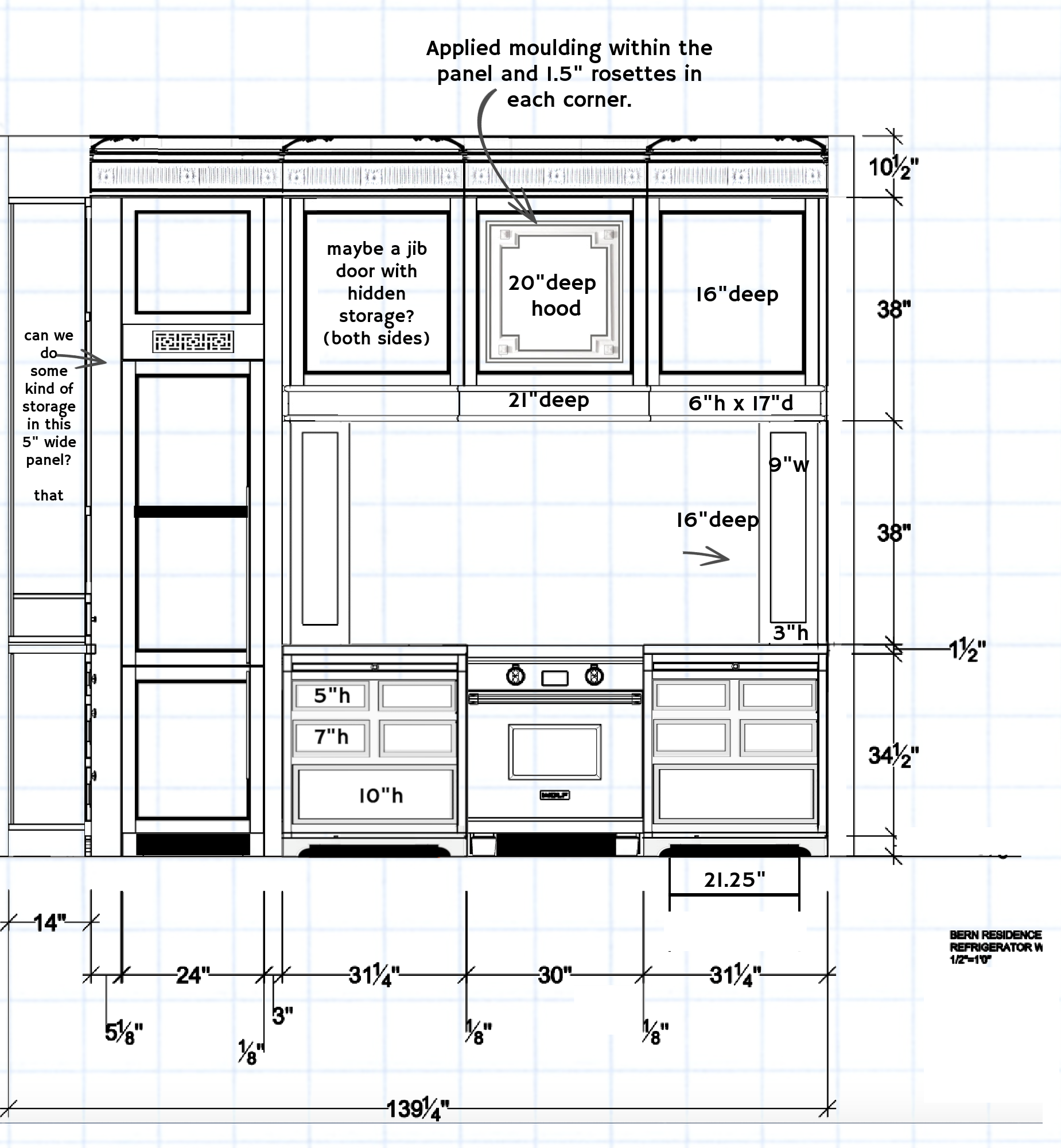
Now, before y’all hyperventilate, yes, I KNOW the drawing above has some significant issues. First, there needs to be a generous stile (vertical piece) on the fridge’s far end so the door can open all the way.
Also, the word “wall” was a misnomer. I really meant pilaster, but I probably said wall because, at the time, I was thinking of this as the mini pantry part of the kitchen. At most, the pilaster was going to stick out one inch. Alas, they’re going to be fairly plain. But, I was told the stile closest to the cabinet needs to be 5.25″.
I played around with the design and sent KD (we’ll call her), not this rendering, but one similar.
Please ignore the faucet. And yes, I ripped that right off of Christopher Peacock. Well, I didn’t rip it off of him, but you know what I mean. ;]

See? I mean, I used a similar image to this for the rendering! I can’t find it now. But, this one will suffice.
Please note that the crown detail was not yet included in these renovation plans.
And, there was an error in height at this point. So, there’s another 18″ to go!
Then I played with the design again, and below is what I came up with.

And the charming vent from fantastic designer Courtney Hill. You have to check out her work. It’s gorgeous! And yes, I ripped the plates off from Furlow Gatewood.
Laurel, weren’t those images in your frient’s kitchen in Bronxville?
Do you mean this one? Yes, I ripped those off too. Do you have a problem with that? ;]
Well, no, but you don’t sound sick, Laurel.
Thank you, but fortunately, I’m feeling much better than I did last night and this morning.
However, my point is that when I design, I love to take a little here and a little there and then transform it into something that becomes my own.
However, I’m not finished, so let’s keep going with the change in renovation plans.
The following week, KD sent me a full-frontal rendering in perspective of the kitchen. It wasn’t this one. This is after I made some changes.

Please remember, we’re still going up another 18″!
KD had put in a wood floor, but I love this rustic, not quite black and white checkerboard floor. The squares are 15″ square. The more I worked with this design, the more I loved it and knew we were on the right track.
All that needed to be worked out were the details. But, something was bugging me.
The counters. While I love the beautiful white marbles, it all felt like a marshmallow in the snow. And, remember how I’m always harping on balance. You know what I’m going to say.
It was crystal clear to me that the counters should be soapstone.
But, then, I had an idea related to the Victorian coving moulding I plan on doing.
The WHAT, Laurel?
Our English readers are having a good laugh right now. They know exactly what I’m talking about.

Above is the plaster coving, as the British say it. Or sometimes, cornice. But, it’s never “crown.” The queen wears a crown, not the ceiling.
The cove is a true swan neck cove, they call it. And then most of the crown (we can stick to our American word) sits on the ceiling. But, what really blows my hair back is how you can see the beautiful return of the crown when looking at the top of the fireplace chimney.
Above is a close-up view and in cross-section.
And yes, folks, it’s made of plaster.
Above is another Swan Neck Victorian Coving from GJ plaster mouldings in the UK. This one’s a little too big for me.
DeVOL did a similar moulding in their incredibly gorge Manhattan showroom in 2020.
Of course, I have my own Victorian coving in both the living room and den.
This DeVOL kitchen features a more contemporary version of the ceiling cornice.

Mine has a decorative frieze. Remember when we talked about the entablature in classical architecture?
Well, I also want this Victorian detailing in my kitchen.
No, not as grand as in the living room. But, scaled down about 30%.
The problem is that everyone looks at me like I just dropped down from another galaxy when I begin talking about this stuff. However, that’s not thwarting me. The wish is to have this kitchen look like it was ALWAYS here. I want Thomas Jefferson to walk in and say, “Not too bad, Laurel.”
This would be a good time to review the current kitchen from the real estate pics.


Believe me; it looks worse in person. The inside of the cabinets is so disgusting; I can’t stand it.
Anyway, we need to move on with the change in renovation plans because what was bothering me with this new plan was that I was no longer going to see that beautiful return on the hood of the Victorian coving cornice. I mean, if I have to have a hood. (I do.) then I’m going to make it the world’s prettiest freaking hood!

Yes, I could go back to just a hood in the center and then the walls flanking it (like above), but I love the drama of the hood spanning the entire 93″!

Above is John Jacobs’s gorgeous galley kitchen. This is one of my all-time favorite galley kitchens!
Incidentally, yes, indeed, I ripped off the moulding detail on the hood. Remember this post about an early idea for my entry closet? Oh, so many beautiful mouldings! Well, I remembered this gorgeous one by Josef M. Design.

I love this, but I left the center cartouche off.
And then, it came to me. There is a way to create the dramatic hood spanning the entire length from the fridge onward and also see my beautiful hood return.
Yes, I could make the hood section into three sections. The center section comes out four inches past the two end sections.
This hood’s detail is better. While I adore the Greek Key corner detail, it feels a bit much here. Besides, that motif already exists in the living room! Please scroll back up; you can see it at the top of the windows.
The other day, the cabinet people needed some good drawings for pricing purposes. So, I did further tweaking.

Now, let’s look at how the renovation plans have changed for the back and sink walls.

The sink wall isn’t quite done yet. And, I so wish the wall could be a little longer. However, it can’t because of the off-center doorway. I’ve made it as long as I legally can. That’s life. The cabinet on the right is a coordinating piece similar to the fridge cabinet. Only this one will house a dishwasher, microwave, coffee mak, and some pantry space.
I am sticking to the spirit of the classical Victorian English style. There are some areas of embellishment, but I am trying not to get carried away. I don’t want anything to feel contrived.
So, let’s look at some of the kitchen details.
Oh man, I can agonize with the best of ’em when it comes to the details.
However, it’s the details that matter most! That is after the design and renovation plans are complete.
How did I do the crown detail?
Great question! It took me hours. I had to use wood for now. To make life easier for KD, I went to Kuiken Brothers who have a fantastic website and CAD (Computer Aided Drafting) files. They also have Victorian-style moulding. I changed one or two mouldings slightly.

However, it’s hilarious. This is a very large image, but when I went to put it in my image in Picmonkey because I had to reduce it to a tiny fraction of this size, it disappeared, entirely!
Therefore, I had to seriously beef up the lines.
Next up, I’m 97% sure I want to do a frieze detail. I love the rosettes but don’t want them too close together.

I found this decorative frieze from Outwater, but it’s a little too large. For now, I used it, but shrunk down a little. The frieze and crown will run all along the kitchen and entry.
And finally. Do you have any idea how long I looked for that vent cover?
You will want to send the guys in the white coats if I tell you. (Yes, please do, but only if they’re cute.) ;]
Bloody damn! I couldn’t find it. So, I looked up geometric patterns on Pinterest. And I came up with one that I really like.
I could also have copied Courtney Hill’s, but I like this one.


Then, I put it in Picmonkey and reversed the black and white to make the grill out of the white. See? I love this!
Oh, there’s more. But, alas, I am pretty tired now.

Above is the new floor plan. It’s true; the kitchen has less counter space. However, it has two good-sized counters on either side of the range. If the range is off, it can also be used as a counter. Also, I added some pull-out shelves. Please scroll back up to see. I love the way that detail looks.
Okay, I’m going to close with one last image I made about four weeks ago, using KD’s computer generated rendering as a base.

Does that little painting look familiar? You can see the real one here, which is far larger.
Anyway, I love these new renovation plans!
The soapstone is definitely the way to go, I think. By the way, I will not overdo it with the shaped valance furniture toe-kick. I adore the way the Bronxville bathroom and kitchen were done.
The downstairs has changed too!
I think it really is true that one should be in their home at least a year before any major changes are done. But, now, I’m wondering if it should be two years? Yes, if you’re me. haha
Well, I need to rest, so I’m going to edit and relax.
Hope you’re all fairing well with the heat. Speaking of which, my temp is almost back down to normal.
GUYS! Please. I know you mean well, but before commenting, please read the post.
xo,
PS: Please check out this week’s super HOT SALES!

And, also, there are only EIGHT days left for the Nordstrom Anniversary Sale!
Related Posts
120+ of My Favorite Interior Design Books + Gardens!
The Best Decorating Plan For Beautiful Rooms!
Can A Raised Ranch Home Become A Traditional Home?
Rooms With Light Walls Look Larger, Yes Or No?
A Long Narrow Hallway – Help For A Dark Scary Mess
Treillage – What Is It? And Why Your Home Needs It!
The Classic Kitchen – A Complete Source List





92 Responses
Hi Laurel! Haven’t had a chance to read your blog in a while and was so happy to find some time to do so today.
Love seeing the kitchen and how it’s turning out. I had one idea to bring in some warmth without having to give up your white marble counters. It’s doing the “china cabinet” in a pretty walnut or other stained wood. Wish I could include pictures to show you some lovely kitchens I’ve seen where they’ve done this. It’s a beautiful look.
Best of luck in the completion of this project!
Long time lurker here!
I noticed that about the fridge too. We once installed a fridge where I couldn’t open it wide enough to remove the bins to wash. It became pretty awkward to clean thoroughly. The problem might be completely solved by having a fridge that opens right-hand instead of left as pictured.
Also, be careful of soapstone for a countertop. I have it in my kitchen and absolutely love it, but it scratches VERY easily (even by the ridged bottom of a wine bottle!). It’s durable as far as heat is concerned, but doesn’t stand up to nicks,scratches, or any kind of edge impact. It’s fantastic if you don’t mind a bit of “character.” I still wouldn’t trade mine, but I treat it with kid gloves.
Your design is absolutely gorgeous. I never would have thought a galley kitchen could be so open and inviting.
The kitchen is absolutely dreamy.
Hi Joy,
Thanks so much. No worries. There’s a five-inch panel to the left of the fridge which allows the door to open all the way so that the bins can be removed. We considered having it swing the other way, but then comes the issue of having to move around the door.
I’m late to the post but I wanted to say that your kitchen design looks absolutely gorgeous. I love it.
I have a family of 6 with 4 rapidly growing kids, and I’ve discovered that I don’t need as much counter space as I thought I would. Maybe it helps that I usually put things away after using them. So I think you have ample counter space.
For my prep sink I got one that allows for a cutting board to fit over it and I can use that as additional counter space if I want.
Can’t wait to see the developments.
I like the improvements! Your fridge next to the wall will be fine. Mine is like that and while I can’t open it past 95 degrees it opens far enough for me to do everything one does in a refrigerator. Yale Appliance will do a video call with you for $149 to be certain every model you’re considering will fit great and will come out for an in person assessment if the video chat isn’t enough, then you get your money credited back when you buy. I love my dish drawers and would never go back to a regular dishwasher. It does not eat up floor space and you don’t have to bend over for the top one. I think you only need one dish drawer. Tines are smartly spaced and I can fit a full regular load in the one bigger dish drawer and rarely use both— family of 5! My sister has my favorite sink set up— instead of sticking out 3 inches hers sticks in 3 inches. It makes washing dishes a more pleasant experience as you feel you have a great place to stand. I’m not worried at all about your counter space or storage space— looks good to me.
Oh wouldn’t it be loverly! Btw, by opting for soapstone counters, have you changed your backsplash selection?
Drop. Dead. Gorgeous.
Stay cool!
I was so excited to see your drawing. As a huge Devol fan I am also designing a 20×20 unkitchen in our former back patio space so it’s new build. Check out Tech Lighting for beautiful architectural “un” recessed lighting -😊Hope readers pay attention to the fridge door factor- our architect did not and we ended up having to redesign the entire wall after losing those 8” and another 4” to a brick error. 😫I copied your wonderful range hood as I wasn’t thrilled with my boxy one flanked by uppers. Love the jib door storage idea!
Btw we ordered Subzero and Wolf range in Jan and stove is now expected in Feb 2023. Ordered a black gloss Ilve Nostalgie w/brass trim from the manufacturer and received it 2 weeks later. Somehow Italy is shipping faster than the US! love your design. The soapstone here all looked like a hurricane radar map so we did a leathered black granite. There’s a Nero Black that’s a dead ringer for soapstone if you find it. The 4” Zelig tiles would be fabulous. Love your design!
Thanks so much for all of that, DE! Yes, to “un” recessed lighting. It’s come a long way from those big 6″ cans.
Gosh it sounds like mistakes galore! Sorry about that. I’m flattered you’re copying my range hood idea. Your kitchen sounds like it’s going to be stunning!
Glad hear you are going to get an induction cooktop! I’ve had mine (Electrolux Icon) for almost 14 years and I love it!!!
Lovely. So much fun to see what you have done, and to learn from your thinking process. Thanks. Some of my cooktop area faves are the pull out shelves, the hidden countertop storage especially the 16″ right side, the possible hidden jib door upper storage, and the possible 5″ pull out storage to the left. It feels like having a definite point of view combined with limiting architectural elements leads to an abundance of amazing design and usefulness.
If you are considering a drawer dishwasher, I used to have a single drawer dishwasher, and I loved it. It was the perfect size for my household of 2 adults. It left room for a large storage drawer underneath it.
That’s a great idea, Martha. Thank you.
Finding square tile of medium size for checkered floors is a nightmare these days. Either 30”” or rectangular are all the rage. Hope you have more luck than I did
What a dramatic and beautiful change this reno will be! I like the lower placement of the sconces in the last rendering.
I can barely stand the gorgeousness of your future kitchen! Seriously swoon-worthy! It is so great that you allow us a peek into your designing process, Laurel. It’s fun and educational. I’m so excited to see it all come together. Thanks for letting me live vicariously through you! :]
Clarifying that I like the more muted new flooring option much better. And I think the kitchen space is sufficient. None of my neighbors ever cook and large or small, children at home or not, their kitchens go unused. So I believe that resale wouldn’t be an issue for a large sector at any rate. In an elegant urban setting like your historic building and a space with unbreachable boundaries, it’s just right.
Hi Laurel, I am following this design development with keen interest, but I’m not sure I understand the 9’6″ counter on the back wall. If the wall is not open to see the beautiful kitchen behind it, why are you putting a counter in that spot? Please forgive my failure of imagination. I have no doubt you know just what you are doing and it will be gorgeous. With all that trim work, people will be dazzled!
Hi PJ,
This is one of those things that’s been discussed in numerous posts. So, if you are just tuning in, my apartment is one of five apartments in a single brownstone in Boston.
Actually, that’s a side wall. The back wall is where the built in china cabinet is located. The reason the counter must be there is that I need a sink, a dishwasher, and more storage. There is nowhere else for them to go.
The blue wall behind the 9’6″ counter is an existing wall. And everything to the left of the new widened and pushed back black wall is SHARED with the front duplex.
Where the black wall is, outlines my entry and the back of the closet/pantry. These are my limitations. It is a galley kitchen. However, it is a little wider than most by about 10″. So, that gives me a little more wiggle room which I’m taking advantage of. However, the extra space is quite noticeable having come from a very tight galley kitchen.
Ever so much better. Beautiful plan and you will be so glad to have a larger refrigerator when you host parties, etc. I have soapstone countertops (over Brookside moss cabinets) and I love them. In my opinion you are ready to start renovation. Can’t wait to see what you have done with the downstairs. Best wishes for patience and money. Julie
I know this is all in a day’s work for you, but I applaud your bravery and tolerance. I don’t know that I could put my heart and soul into something, and throw my work product out to the masses for review and comment with such grace and restraint. I just read on the “all-knowing Facebook” that you shouldn’t worry about criticism from anyone from whom you wouldn’t ask for advice. I suppose that might help take some of the sting out of things.
Hi Susan,
Thank you for saying that. I very much appreciate it! I have a couple of friends who are the recipients of my venting– offline. I’m sure that people are trying to be helpful. The only thing is, I didn’t ask for it.
To those that have given me advice, please think before you comment!
And know that I am not above asking for help. I’ve asked you guys for help on numerous occasions and I’m sure I will again, but on this occasion, I did not. Please be mindful of that.
It is apparent, that some commentors have NOT read the post as they are pointing out things that “need fixing” that were already addressed and fixed and stated as such– IN the post. Plus, several don’t understand the drawings because interior design is not their field. Of course, that’s fine. But then, they are informing me about what I need to do?
***The message I was trying to convey in this post and the next one is that it’s better, if possible, to wait until one’s lived in a place for a while, before making major changes. Also, I thought it would be fun for y’all to see what my “unkitchen” looks like– conceptually. There is no one way to do an unkitchen. There is seldom one way to do most things, except for measurements. They’re absolutes, because the walls are not moving. And, we have three walls and a ceiling to contend with.
If people would like to worry about something; worry about that, and please pray that I can make this project happen next year!
Thank you. I love you all, and so appreciate your love and support!
I think you should do away with vertcal post or boxes that I see on either side of stove. Can’t see what they are.
You are going to need all of the counter space for prep and other items on counter.
Enjoy your advice!
Marian, as stated earlier, there is more than ample counter space– nearly 8-feet. And, it’s nicely spread out, too, so if my son is visiting, for example, we won’t be tripping over each other. Those pieces are for handy storage.
It’s stunning.
Between your talent and the fact you’re using a professional kitchen designer, it’s sure to function well and look amazing.
Thanks so much, Lorri!
Beautiful rendering. . Over the range are you going with the single long shelf or the triple cabinet with storage? I couldn’t tell from the blog. Pesky issue of storage!
I love the look of the counter depth fridge ….I have one but had to have a 2nd regular fridge in the pantry as we get visitors often on Cape Cod…
I too am a fan of the used/stained countertops. Kitchens are to be used and loved and lived in!
Hi Jennifer,
No, those pieces, 38″ above the counter and flanking the hood are technically cabinets;(please note that a depth measurement is on the drawing) just not the typical 18″ above the counter. Why? I love the drama created by the large opening, and also prefer the straight, crisp line across. Am I sacrificing some functionality? Very little, due to the vertical cabinets which are at a far better height for storage. Yes, they are smaller, but deeper, so I can possible have pull-out shelves. The two of them will easily hold all of my dry storage such as sugar, salt, cereal, popcorn, pasta, etc.
I wish that folks would understand that I am currently ONE person,(although hoping for a second) not a family of six with four rapidly growing ravenous kids. You should see the kitchen my wasband and I had in NYC and with a BABY, too! That kitchen was half of this one. My previous apartment’s kitchen, before I was married was 4 feet by feet, but with the third corner lopped off to make a teensy trapezoid shaped corner kitchen. But, I cooked in it. I mean, really cooked!
Just finished our kitchen remodel. Took 3 years mostly due to Covid. The details are overwhelming, but worth every sleepless night. We put in soapstone with a bit of nerves, but don’t regret it a bit. Love the look, feel and we have no staining ! Did not oil, just left it natural.
Hi Laurel
Everything is beautiful.
Too funny. We installed that exact same one into our current bedroom! so far so good except that we had to level up the BTUs to the maximum strength to get it cool enough.
Quite beautiful and I like the less stark black and white floor choice. This will be vastly superior as viewed from the mostly original room; of course it will, as it’s very elegantly Laurel Bern. The existing kitchen flooring is very school cafeteria / fast foodish. Couldn’t blame anyone for changing it.
Recirculating hoods are so much better than they used to be. If they cannot vent (which as you not can be very tricky in older buildings) then this is second best.
I love it, but of course I a, just living vicariously thru your blog! All-in for the new plans.
This is just gorgeous!!! If I ever move to Boston and have the funds I’d hire you in a second (if you’re available). How do you like living in Boston?
Hi laurel love the look!! You probably already know this but for others who don’t, a few things about the drawers. One long drawer will accommodate so much more than two smaller drawers. Use the bamboo dividers to keep items organized. The bottom 10” drawer will probably only accommodate a pot 5” high. So double check ur pots will fit. Same goes for the top ones that are 5 & 7”. Also I notice in the drawing above the 5” drawer it looks like a pull out, I have had these in previous kitchen and although it looks and sounds like a great idea I found they could not support much weight and seemed to get in the way. Not sure how everyone else feels about them but I just could never make it work. If you were to lose that pull out you could actually increase your drawer sizes! The only time I could see this working if you work with dough and need the space for rolling again it will need extra support. Hope your feeling better!
Looking fantastic! A couple of small practical details…Will narrow range-side cabinets open on long sides? And can you include a sink that allows for a cutting board to be inset for additional prep space?
I hope you are feeling better!
It’s lovely. It’s the sort of kitchen where you whip up cocktails and finger food, not big roast dinners for large familes. Sounds like a nice lifestyle to me!
Here in the UK, people wouldn’t normally put coving in a period kitchen. Kitchens were working rooms, they were functional and not decorative. For instance, you wouldn’t be allowed to put coving in the kitchen of a grade 1 listed house.
However, I don’t think your kitchen was the original kitchen anyway. It’s just a beautiful little jewel box in a fantasy bower. So, I say, crack on!
Hi Karin,
No, the original kitchen was where my bedroom is now located.
However, please go look at the DeVOL website. Half of their kitchens have elaborate plaster coving, and these are very old homes, mostly in the UK. I think you must be referring to the massive Downton Abbey type homes with huge kitchens in a low level of the home? That’s an entirely different situation, of course.
My kitchen was part of the original formal reception area of the home, and is now an extension of the living room in my 1215 foot duplex apartment. This was originally a single-family home and now there are five separate apartments. That’s five kitchens! Nothing is normal, here.
Oh my, you should see what some people do to these places. It makes my stomach turn. You’re not allowed to touch the exterior, but apparently, anything goes INSIDE. People take down all of the walls, all of the moulding. ALL OF IT. They put walls up to divide a bay window, and extend the kitchen so it’s butting up against the living room fireplace.
Your design is gorgeous!
Some people have commented about limited countertop space, and the comments are valid. But it depends on how much you use your kitchen. If you mostly eat out, it won’t be a problem. If you see yourself doing much entertaining, then it could be a problem. Some people also suggested an 18″ dishwasher. Frankly, I can’t tell from the design if you are using full sized appliances or apartment sized appliances. My only comment would be that I recently designed a new kitchen for the Condo we purchased. I used apartment-sized appliances for the stove, over-the-stove microwave (there was no way for me to do a traditional vent hood) and refrigerator. But I went with a full-sized dishwasher, and I am glad that I did.
Hi Linda,
Thank you, however, counter space was discussed in the post. It is more than ample for me. If this was Manhattan, people would positively KILL for this much counter space! I’ve never had more counter space than is going to be in this kitchen, and in two kitchens, considerably less. It’s never been a problem.
Yumm! Your kitchen is really shaping up beautifully! I love the floor and soapstone and refrigerator tweaks.
One idea would be to use marble for the wall with the stove, whether it’s subway tile or a slab. Hopefully you could get marble that perfectly coordinates with the floor.
Also, I would suggest making the extra space to the left of the fridge wider. The space could be used for all sorts of things, but not being able to open the fridge door wide enough to put in cookie sheets or a turkey platter or pull out shelves will be disappointing.
Lastly, is the deep wall to the right solid or is it a stud wall? I wonder if you could use the spaces between the studs as a pantry. It would have to be done beautifully, of course! Maybe it could look like a paneled wall with the panels opening to finished spaces with shelves.
Hi Alicia,
I’m sorry, but the issue of the stile next to the refrigerator was discussed at length in the post, and in a previous comment. The latter of course, you didn’t see when you wrote this. I know that you mean well, but all of these issues have been thought of and taken care of. I have a wonderful kitchen designer, a great contractor, a great cabinet company,(I’m hoping to be working with) and a manufacturer of the appliance with precise specifications which need to be followed.
The last paragraph however is an excellent question. That is something that I also thought of when I was sold on the old plan. It wouldn’t work now. But, even if it did, here’s the sitch.
That wall, not including the moulding is 10″ thick. With the moulding a full foot! And, inside it lives a 9.5 foot TALL 3.5 feet WIDE and THREE inches THICK, – SOLID, OAK, pocket door.
I know that it weighs a ton. I know this because there is a loose 9-foot high 36″ wide 2″ thick “regular” solid door leaning against a wall in the den. I can’t even slide it, much less pick it up. Most men can barely move it. So, imagine a door that’s 40% larger. It will cost a fortune, just to extract and get rid of the door. It’s not worth it. I have too much to do and far more pressing needs. This is all wildly expensive. The building permit alone is 5,000 bucks. Holy Wow!
However, I have another area that I’d like to turn into a hidden pantry. Can you guess where it is?
Dear Laurel,
I am completely sold on your eye for design! Being somewhat of a frustrated designer myself, I cannot get enough of your gift for detail and talent being able to look at what is currently in place, when so desperately in need for change. I think I’m going to move right next door to you and hire you to design my “Over the Rainbow” home”!!
Hi Mary,
Well, except for two old clients and my late mentor’s husband, I don’t do any kind of client work. However, there are some 850 blog posts and my rockin’ interior design guides.
You don’t need me.
Waiting is the best thing (particularly when you’re a designer!) Then you know what works and what doesn’t. 1 question and 1 comment, what is the rendering software you are using? It’s very good.
2. Look at Jet Mist granite rather than soapstone, same look, less maintenance. I love soapstone but went with off white cabinets and jet mist (honed) granite in my kitchen and it looks great and I don’t have to oil it every 6 months or more.
Hi Barbara,
Thanks so much for the info about Jet Mist. I think we talked about it earlier. Or else it was something similar. As for waiting. That’s what my son says. “Well, Mom what are you going to do when you’re finished?”
Well, I’m gonna have a party and then I’m gonna go to Disney World! haha
I like your thinking, Laurel. Isn’t it satisfying when you finally get there? Glad you feel better.
Thank you so much, Cynthia!
I love the look of the floor you have selected. Do you have a specific tile in mind?
Hi Bunny,
This isn’t Bunny Williams is it? Imagine if she reads my blog! I do have something in mind, but don’t want to divulge that until it’s further along. Although, I know that I’ve talked about it in one or two posts. So, if you care to go digging, you’ll probably find it.
Wait, wait, wait! Am I correct in understanding that you are opening the wall with the sink to the entry hall with the gorgeous wallpaper??? Meaning that when your guests arrive, they will see the beautiful range wall facing them across a counter with a sink, perhaps even with a place to sit down and have a chat with you while you toss the salad or peel the potatoes or something? And that means that from the living room, you will look back toward the kitchen, and instead of seeing a wall at right angles to the opening, you will see an open plan kitchen???? Amazing!! I will look forward to seeing the sketch of the view from the living room to the kitchen, given this revised plan!
Hi PJ,
Please see the long-winded response to Mary E. I think that explains the situation pretty well. I hope, anyway.
Laurel, your newest kitchen plan is exquisite! I enjoy being able to follow your planning process and I love your pivots to soapstone and full size fridge. I so admire the life you are building for yourself in Boston, hope you recover quickly!
Thanks so much, Patty!
Love the new design, Laurel. One thing I always like in a kitchen is a counter or cutting board that allows me to pull up a stool for veg chopping, etc. You can always use a portable cutting board and move it to your dining table but it’s a lot less convenient. Is there a spot for a sturdy pull-out cutting board beneath one of your counters?
Hi Kate,
Yes, they are already drawn in the elevation, but correct, they are not in the perspective. The drawers in that are all wrong, but for the purposes of seeing the kitchen entities, I didn’t bother to change them. It’s not a flip of the switch to change elements.
Hi Laurel,
For someone who’s not feeling well, this post certainly doesn’t reflect that. It’s still jam packed with information.
Your design is beautiful. It’s going to make for a stunning kitchen. It will be so great you won’t want to use it for fear of messing it up. 😂
I was wondering though, did you ever talk about why the opening to your kitchen isn’t being moved to center it?
I’m sure you must have. You’re very thorough.
I just can’t recall.
Hope your feeling 100% soon.
Hi Mary,
Well, it was a relatively easy post to put together because I had already done the previous 500 hours of work. haha. No really, just the drawings took days to do. And, in the late afternoon, I was already feeling so much better, however, by 10 PM, I admit, I was running out of steam, but pushed through it. That’s why deadlines are crucial for me.
But, I can’t wait to mess it up. The new kitchen will have 142 years of catching up to do with the rest of this place!
As for changing that opening. It’s not feasible for a lot of reasons. The kitchen and entry big opening (half of the original reception area of the home), opens to what was the formal dining room, now my living room. To change that opening would cost an insane amount of money. And, I don’t think it would look any better from the living room. From the living room it’s going to be very pretty, I think. And I actually like that it’s not entirely exposed given it’s appendage-like situation off of the LR. And, I also like how it’s going to integrate with the entry without feeling like you’re walking into the kitchen when walking through the front door.
Another advantage is that because it is shorter on the one side, there will be a more open perspective than one has with a galley kitchen.
That horrible bissecting wall will get pushed back about 18 “now. (please see the floor plan) But, because of perspective when one walks in the front door, they will only see the first few inches of kitchen. However, they are going to be so dazzled by the mural, they aren’t even going to notice anything beyond it, in any case.;] It won’t be clear what is going on until they walk forward into what I hope will appear to be a pantry with a range. haha. Or else, they’ll naturally move towards the far larger and inherently dramatic LR.
You didn’t mention the material on your floor. Looks like marble
Hi Nancy,
I’m afraid to mention it. lol
Feel well soon! I love your kitchen, and I love your changes, and I agree with the full-size refrigerator. Have you mentioned the lighting? I know you do not have upper cabinets per se but will there be something that approximates under cabinet lighting?
That kind of task lighting is so important to me in the kitchen, especially as I get older and my eyes are not as good.
Hi Shelley. Absolutely, but that’s another blog post. The lighting will be beautiful, adjustable from dim to quite bright, and not only that, I’ll be able to create different situations/needs/moods for day, night, heavy prep/cooking, and a romantic evening.
The only other thing I’m going to say, at this point, is that another reason for the long hood is that the entire length can be lit, and even better it is deeper than a traditional upper cabinet. Although, I am not 100% positive of the final depth, it will be more than the 12″-13″ deep upper cupboard that’s found in most kitchens with upper cabinets. To be clear, I’m not talking about typical hood depth
One comment about the refrigerator placement: beware placing it close to a wall. Yes, the plan shows a small stile or spacer to the left, to enable the door to open adequately, however, should you wish to remove an interior bin for washing, you may not be able to get it open more fully. This is an issue I’ve encountered and the space provided was even wider than what is currently in your plan. Just sayin’…Feel better!
Hi Lyn,
Please review the last elevation. There you will see a 5.25″ stile which is what the manufacturer recommends. It’s also in the post:
Now, before y’all hyperventilate, yes, I KNOW the drawing above has some significant issues. First, there needs to be a generous stile (vertical piece) on the fridge’s far end so the door can open all the way.
Also, the word “wall” was a misnomer. I really meant pilaster, but I probably said wall because, at the time, I was thinking of this as the mini pantry part of the kitchen. At most, the pilaster was going to stick out one inch. Alas, they’re going to be fairly plain. But, I was told the stile (vertical piece) closest to the cabinet needs to be 5.25″.
Please understand that every inch is going to be gone over, checked, and double-checked that it meets code, and can function as intended.
I agree with having a space to tuck the trash can inside of the cabinets. I LOVE ours and it is on hydraulics so it just glides back in. Very easy upgrade. Also please investigate the range hood maximum distance and make sure you have one that is powerful enough to pull that distance. I bought a very expensive Bosch one only to find that not only is it super noisy, it doesn’t pull the steam a far enough distance so it really is worthless.
The ventilation will be A+. I’m sorry you did not have a good experience with your Bosch. But maybe it’s an installation issue? I don’t know, but I do know in this business that sometimes faulty mechanics are a problem with installation. Case in point is my lovely new Midea window AC. It’s whisper quiet and cools the entire apartment upstairs AND down, even on this 95-degree summer day. I can’t recommend it highly enough! However, some may recall that it was installed incorrectly.
Laurel-
Your Realtor here who sold you the home-
This is magical-
I’m so glad you have waited to renovate – the design is beyond thoughtful – it’s a lesson that many of my clients don’t listen to- buy the home and move in and “feel the flow” and decide how light and your daily routine shapes your design. The drama of the living dining spaces has been integrated into the kitchen without distraction. I can’t wait to see it and I promise you a home cooked meal while you’re under renovation next year!
Hi Maureen,
Yes, there is at least one other reader named Maureen O’Hara. And yes, the living room IS as you say, dramatic. For others, it may not show in the photos, but the windows are MASSIVE– NINE feet tall! Yes, it’s fine to hate me. I would also have hated me before I got to live in this place.
***For anyone looking to buy a place in Boston, Maureen is an amazing realtor who of course, will work all over town, but specializes in the entire Back Bay and South End neighborhoods. I can’t recommend her highly enough. I have Elle, (A Proper Bostonian) to thank for recommending both Maureen and my Boston real estate lawyer, Ronald Segal. He’s one who dots his I’s and crosses his Ts– not just once, but three times minimum.
Wishing you a very speedy recovery! Love looking over your shoulder as you work on your lovely home. As you advise others, there’s no rush and plenty of time to make it perfect.
Thank you so much, Ivis. No fever today. No covid; took a second test this afternoon to confirm.
It’s probably just a mild case of zika or encephalitis. I’m only half-joking. But, I attract mosquitoes like you can’t believe. You’d think I would’ve just taken a bath in honey before venturing out. Therefore, I have concluded that I am a mosquitoe’s “banana cream pie.” haha
Yes, I use OFF. They still freaking bite me. I even had a bite on my right index finger by my fingernail.
I went with the soapstone look without it being actual soapstone. Used Caesarstone “Black Tempal.”
I used Soapstone when we redid our East Hampton kitchen…gorgeous…but impossible to keep from staining .. It drove me mad..
Think twice about it.
Feel better.
Hi Patricia,
Oh, I’ve thought about it much more than twice. ;]
However, I’m one of those nutso people who love stains and decay. I was in heaven when visiting Venice in 2016. But, really, I love that old, weathered look. For those who don’t like that look, however, one can oil the soapstone. It does make it darker and also hides the stains quite well.
I’m a professional pastry chef and just looking at it — it doesn’t appear to be a kitchen designed for function. The drawers are too shallow, there’s display rather than a space for dry food storage, no vertical storage for sheet pans and roasting pans, no storage for equipment, etc… The sketches are gorgeous, but with such a small space you need every inch of it to be functional. Speaking as a chef, china cabinets belong in a living space — unless its an unusually large kitchen. Your space is on the small side but you could do some amazing things with it. Your home is positively gorgeous — I just wonder whether you’re kind of short changing yourself on the kitchen (lots of cost but very little potential fun using it).
Lori,
While I’m sure that you mean well, may I suggest trying to have a little more faith in my process?
Please understand that what you are seeing is not the finished-going-to-be-built design. In addition, half of the entry closet will be a pantry. While I’ve mentioned that in other posts, I forgot to mention it this time. Sorry about that. However, even without that, there is another pantry above the dishwasher. And plenty of drawers for storage– more than I need. Plus, maybe you only gave a cursory look, but there are vertical pieces all over the place. I’m still not sure what’s happening with the two cabinets on either side of the sink. There are also going to be four sizeable vertical pieces flanking the fridge and pantry. Plus, there’s always toe kick storage, under one of the cabinets. Oh, and some other spots, for “hidden” storage. However, I’m not giving all of it away in this post! What fun would that be?
Everyone stores dishes behind glass cabinetry. Besides, I don’t want this to look like a KITCHEN. Please remember that I am the self-proclaimed queen of the “unkitchen.” The best compliment anyone can give me is if they say: “Where’s the kitchen?”
However, this is very important. I will never sacrifice functionality for beauty. However, I believe with careful planning, I can have it all. I am also thinking long term. And by that I mean, not just me, but the person using this kitchen after me, after them, and so on… This is why I abandoned the rather eccentric under-cabinet fridge idea. Although I have nothing against them as auxiliary units.
It is beautiful, as I expect from you.. I agree with KD, you needed a regular refrigerator. Get well soon 😘
Hi Frances,
We never actually discussed it. Sorry if I didn’t make that clear. Although I’m pretty sure she agrees with me, I came to the conclusion after seeing her first rendering. I had sent her both elevations, and she returned the one with the fridge on the left.
Please don’t forget an induction range. Mine is the best thing I ever bought.
Hi Jane,
Huge YES for induction!
Hello—hope you’re feeling better soon.
I agree with above comments—pullouts in columns on either side of the stove, 18” dishwasher. There are also sinks that have cutting boards and other inserts to make the most of that space. please make sure you have space for trash. There’s nothing worse than having a beautiful kitchen with a trash bin hanging out getting in everyone’s way (pet peeve)., Finally, I see in the last rendering you have four drawer banks on either side of the range. On one side why not combine the two drawers on the bottom to make space for taller pots etc? Make it look like two drawers and keep the symmetry but get the depth on the inside.
Hi Cassia,
Absolutely 100% for pullout trash bin. I’m thinking one that goes under the sink. Please note that the rendering is a month old and the drawers are not at all as they will be. I should’ve mentioned that. However, there are not four drawers. The top one is a pullout board. But, we will figure out where tall pots will go. Actually, I only have one, which I’ve used once since moving here. I may store it in the entry pantry on one of the higher shelves. I do like the cutting board insert for the sink, as well.
Looking Good Laurel,
How about pullouts in the columns on both sides of the stovetop. They are great for oils, vinegars and spices, maybe even a few cans of soup and Chile con carne.
Will cookwear go in the large lower drawers on either side of the stove?
And I was thinking blind corners on the end wall, in the far reaches next to the refrigerator and dishwasher would give you a safe, accessible place for your off season dishes and servewear.
Have you looked into 18″ wide dishwashers? Might be fewer drips on the floor.
Your forever home/investment can have a 2 year planning phase.
Take care!
Hi Ruth,
And don’t forget a handy bag of popcorn.;] Yes, they are definitely going to open. But, since this is crazy ol’ me, I don’t want that to be obvious, even though I did make a little knob a month ago.
I’ve always had a 24″ dishwasher and never noticed any dripping. I do have space for the 24″ and 90 of the time; it would suit me fine. However, there have been times when I think, “Thank God this isn’t an 18″ dishwasher.” One other idea would be to have two dishwasher drawers. I know many of you have them and love them.
I like the muntins on the glass cabinet doors, but I don’t like when the shelves are not lined with them. I hope your shelves will be positioned with the muntins.
Get well soon!
Hi Patie,
I couldn’t agree more. I didn’t put them in. And am not sure I am going to divide the glass as shown. But yes, they must absolutely line up with the muntins. Some things that drive other people nuts don’t bother me. But this one would.
Coming together nicely. We’re big fans of classic Victorian English. Love the the coving detail. An externally exhausted range hood is a must, even over an induction cooktop, and especially in a small space. I’m curious why not a front apron sink? They’re much more efficient to use, eliminating that awkward front ledge. And it seems it would reduce the need for an excessive bump out.
Hi JoeD,
I am not sure an external exhaust is possible, as the range is about 30 feet from the exterior. These houses were built with “party walls” between houses. However, whatever is sucked up will go out of the kitchen. I’m not sure how they work, but I currently have a super shitty thing that blows out crap and then some horrid thing in the ceiling which sucks it up. There is a 3 foot crawl space above the kitchen, as it was, of course, 13.5 feet, like the living room is, originally.
I could do a front apron sink, but I want an under mount for this kitchen. The bump out is purely because I want one. I want at least one place where the return on the base toe kick cap moulding detail can be seen. It will be seen from the living room, as well. It is only 3″ which still leaves 39″ between the sink and the range wall.
This kitchen feels incredibly roomy compared to my NY kitchen. It was in the shape of a trapezoid. So, the area between the range and sink was actually less than 3 feet. You can see the shape of the kitchen here, however, the placement is not what it was. The range was 15″ closer to the narrow front!
I love being able to follow your process Laurel! It’s going to be so beautiful 💗💗
Thank you so much, Janet!
Best wishes for a speedy recovery. Thank you for the continued beauty and inspiration.
Thanks so much Gail! The fever is gone, and I slept over nine hours straight! The temp is flirting with 100 degrees this afternoon!